米兜歡樂王國超級旗艦店——羅湖店
深圳羅湖
0755-22219851
中國少兒教育空間設計領導品牌-幼兒園設計|早教中心設計|托育園設計|親子樂園設計|兒童游樂場設計
	
	
當孩子們大睜著眼睛,全神貫注地盯著某個點,而你順著他的目光看去時卻一無所獲。他們看見了什么?可能是空氣中閃爍的塵埃,可能是墻角呼吸的地苔,可能是衣服上生長的光斑。但無論大人們是否能夠捕捉到,都能從孩子們的眼中讀懂同一種情緒,叫做快樂。正如因樂的品牌理念「因天性而快樂」。
	 
 
	
	 
 
	
3位有海外教育背景的合伙人,將國際前沿的瑞吉歐課程及啟蒙理念引入「In&Joy因樂」早托兒童成長中心。她們希望孩子們在成長空間中釋放天性、對話自然,所以項目選址舟山的海島上,推開門步行幾百米,就是一個完全打開的世界,四季的海風裹挾著自然的隱喻,山水寫意勃勃生機。古老的礁島與新潮的理念將會碰撞出怎樣的精彩呢?
	
	 
 
	
	
	 
 
	
	
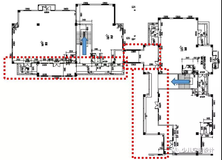
項目位于建筑體二層,狹長的L型通道,銜接了兩個主體區塊,兩條樓梯分別處于不同主體區塊中間,打破了原有空間的整體性。項目結構分散而復雜,與傳統空間大相徑庭。非一體化的空間,視覺重心喪失,空間語序混亂。業主希望因樂在滿足早托功能性的同時,給予孩子們更多的活動空間。讓風鼓動起好奇心,讓光滋養好情緒,讓自然誘發探索的樂趣。
	
	 
 
	
	
對自然的探索是生命最初的本能,因此早托中心的設計核心在「園」,集合設計的設計師嘗試用新中式理念為渙散的空間重新定義主語。希望在內向空間中作出園林的開放感,希望孩子們在跑動時擁有流暢的空間體驗。如何分配雙主體空間的功能權重,如何解構分散的空間提升利用率,如何將花園的概念嵌入到整體氛圍中,是本案設計的焦點問題。
	
	 
 
	
	
用建筑思維打造具有強烈可讀性的園林空間,是本案的設計亮點。結構做空間,幾何做結構,幾何作為兒童教育空間設計的風骨,令秩序之中盎然出一份意趣。整體天花采用局部吊頂,小朋友眼中的屋檐并非遙不可及。斜頂和圓形的教室,方形偏移的教室,所有的不規則只為還原千姿百態的世界。拆掉樓梯入口處的墻壁,將外部通道納入到內部使用,增加空間利用率,營造通透而平等的環境語序。
	
	 
 
	
	
全面藍色的前臺斜頂背景墻,溫柔的向到來的孩子和家長們打個招呼。暖橘色鋪陳的前廳,自帶柔光的空間,點亮了孩子們的情緒小燈泡。全開放式接待區旨在鼓勵家長們回歸童趣參與更多。
	
	 
 
	
	
教室運用多種不規則幾何體打造,體量在左右兩個板塊中均衡分布。我們希望孩子們在多元的環境中能感覺到具體的暖,空間的徐徐呼吸。窗外的陽光路過清新的地板,掃到黑色的涂鴉墻上,沉默的黑沉默地記錄下愉悅的生活,滿滿當當都是孩子們的歡聲笑語。
	
	 
 
	
	 
 
	
	
保持雙主體空間的平衡感,將繪本區與游戲區兩個強娛樂性版塊,分列左右主體空間,分開管理。我們希望孩子們對知識的好奇心不會孤單,因此繪本區獨立而具有圍合感。小朋友和書的親密關系,在柔軟的草坪上建立。他們隨意坐下,翻開的書躺在腿上,露出最精彩的一頁,一個孩子手口并用地向小伙伴們分享著有趣的發現。
	
	 
 
	
	
游戲區結合園林進行設計,復雜的建筑體與自然風物全然和解。打開的下行樓梯,用高度與未知向陽光花園致意。孩子們可以從滿墻、滿地的碧綠中,聞到心曠神怡的植物氣息,懂得生物的多樣性。在園林中也可以感受沙子漏過指縫的細膩,小腳丫跳到沙堆中帶來的沙體位移,領略力的美妙。
	
	 
 
	
	 
 
	
	
	 
 
	
	 
 
	
	
多功能型的烘焙區融合通道使用,上方的小屋頂營造出區域感,可以滿足少兒烘焙餐飲、媽媽課堂、老師下午茶等。我們想要向孩子們呈現真正的生活,他們應該試著打發奶油,看看面包的膨脹,嘗過曲奇的甜,也就會懂得完成一件作品,所要付出的真誠和收獲時的喜悅。
	
	 
 
	
	 
 
	
	
	 
 
	
	
讓孩子們因天性而快樂,是因樂的品牌宗旨,也是我們少兒空間設計的初衷。孩子們會耐心觀察每一片植物的成長,嗅到蛋糕的香甜和海風的腥咸,感受到烘焙的炙熱與陽光的溫度不同。沿著蜿蜒的藍色墻壁奔跑,輕輕穿過筆直通道,抵達烏托邦。他們小心翼翼的觀察周遭,伸出手觸碰一切與他們息息相關的事物。總之,成長是對世界的探索,我們希望孩子們擁有探索和發現的樂趣。
	
	 
 
	
	
項目地址:浙江,寧波舟山
項目類型:早教,早托
設計內容:室內設計
使用面積:760㎡
設計時間:2018.3—2018.5
施工時間:2018.5—2018.8
設計公司:GaceDesign 集合設計
主案設計:賀維、朱行奇
設計團隊:陸任杰、陳寶垠、莊凱敏
公司網站:www.nanxiansheng.cn
	
因樂早托兒童成長中心的案例分享到這里就結束了,如果您喜歡集合設計的少兒空間設計作品,或者有兒童教育空間設計、早教空間設計的需要,歡迎留言咨詢,集合設計竭誠為您服務!
	
	
海島上的花園式早托中心 | GaceDesign集合設計
	
——END——
集合設計是一家專注于幼兒園設計,早教中心設計,培訓機構設計,托育中心設計,日托中心設計等文化品牌的專業設計公司
 深圳市龍崗區坂田楊馬米粒文創園708
深圳市龍崗區坂田楊馬米粒文創園708
 0755-22219851
0755-22219851
 13823185684
13823185684
 386164251
386164251
 386164251@qq.com
386164251@qq.com
 
				關注我們微信
? 2010-2020 SET ALL RIGHTS RESERVED. 粵ICP備14074451號
集合設計是一家專注于少兒空間設計的專業設計公司。